MV
image photo

PLAN

プラン

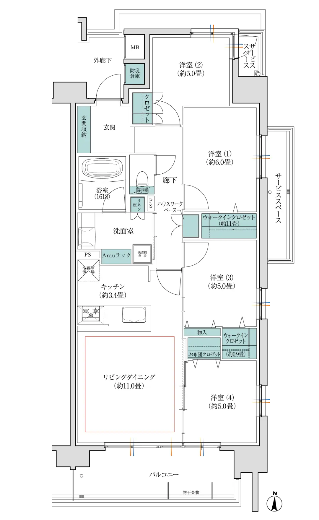
FTYPE
4LDK+2WIC
専有面積 84.10(約25.44坪)
防災倉庫0.60㎡を含む
  • バルコニー面積:10.0㎡(約3.0坪)
凡例

WIC=ウォークインクロゼット
※掲載の間取図は計画段階のもので変更になる場合があります。
予めご了承ください。

間取り図
プラン一覧へ戻る

※掲載の間取は計画段階のもので、変更になる場合があります。
※方位記号には若干誤差があります。正確な方位については設計図書でご確認ください。