資料請求

Contents
資料請求
image photo
image photo
DTYPE
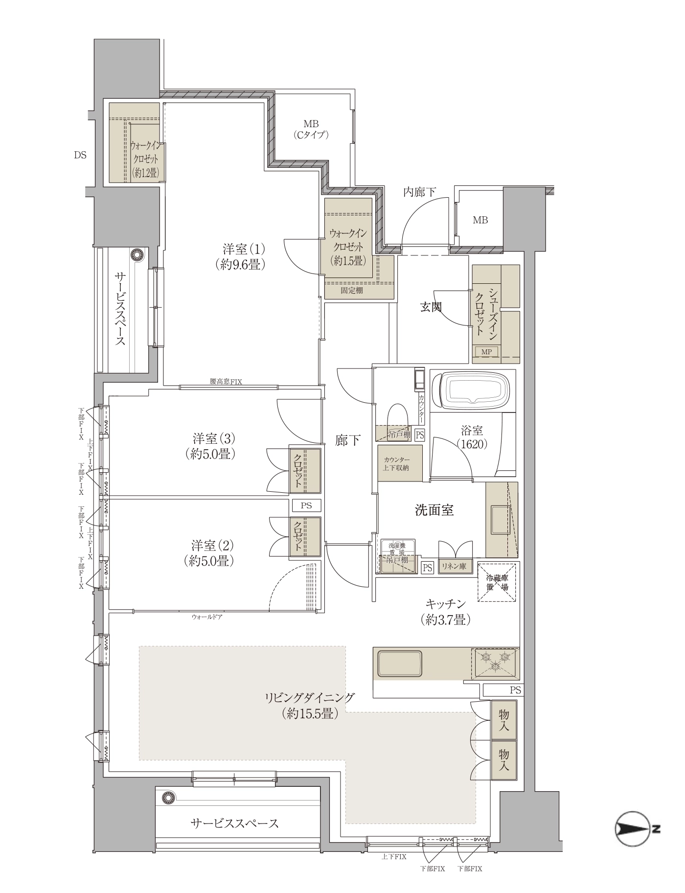
3LDK+2WIC+SIC
住居専有面積
92.21(約27.89坪)

サービススペース面積/6.4㎡(約1.9坪)

  • 全居室に窓を設けた
    開放感あふれる南東二面採光角住戸
  • 腰高窓により緩やかな
    一体感が生まれる洋室(1)・洋室(3)。
    リビングダイニングや洋室、
    玄関に大型収納を備えた収納充実プラン
間取り図
  • =収納
  • WIC=ウォークインクロゼット
  • SIC=シューズインクロゼット
一覧に戻る