資料請求

Contents
資料請求
image photo
image photo
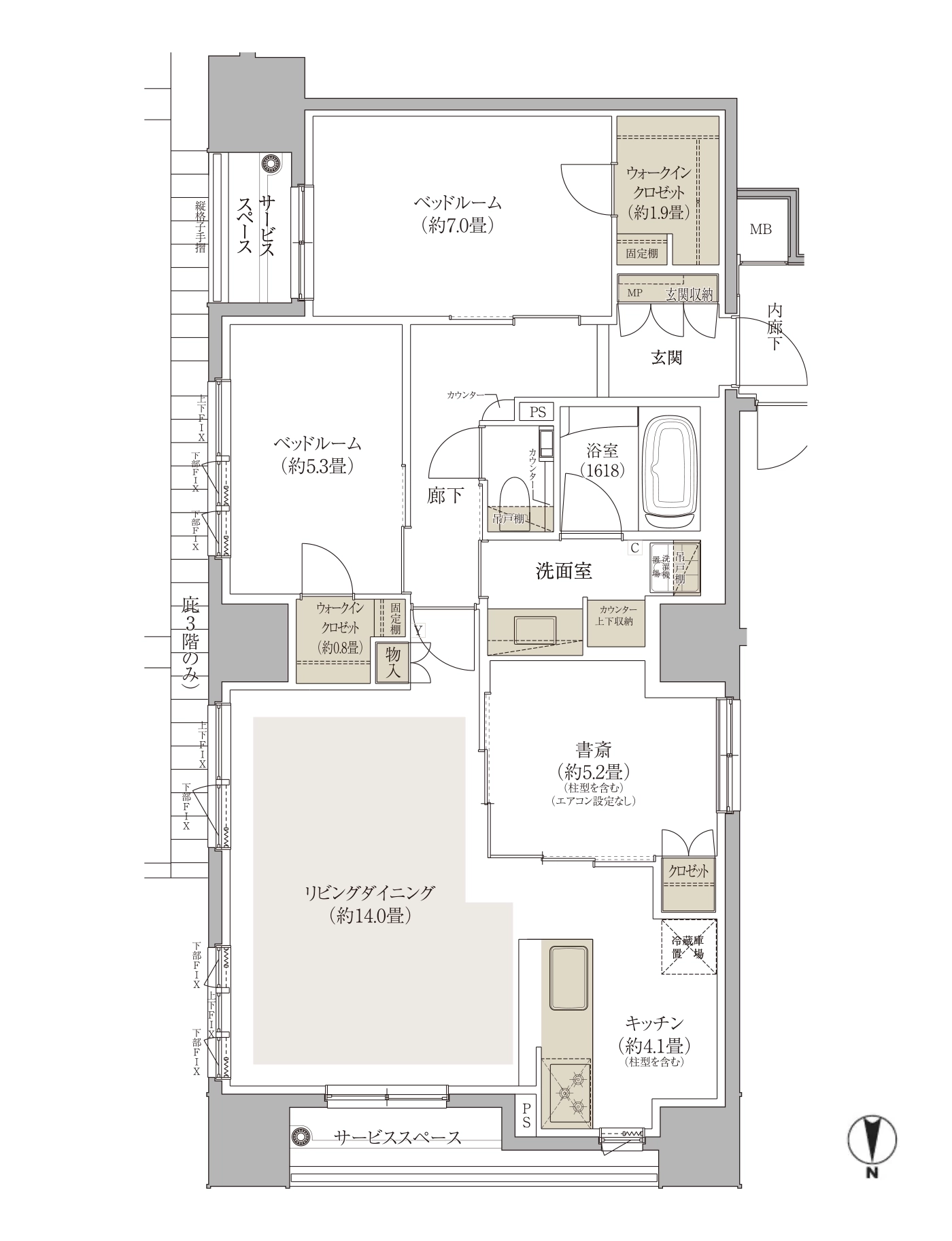
FTYPE
3LDK+2WIC
住居専有面積
83.26(約25.18坪)

サービススペース面積/6.0㎡(約1.8坪)

  • 全居室に加えキッチンにも
    窓を設けた二面採光角住戸
  • 読書に心ゆくまで浸れる書斎は、
    引戸を開け放つことで、
    リビングダイニングと
    一体となる開放的な大空間に
間取り図
  • =収納
  • WIC=ウォークインクロゼット
一覧に戻る